Välkommen till en ljus lokal på Kronobergsgatan! Här samsas mötesrum i olika storlekar med öppet kontorslandskap. I lokalen finns även pentry, ett förråd samt två WC varav den ena med dusch och bastu. Flertalet fönster skänker lokalen med ljusinsläpp. Möjlighet finns att anpassa lokalen till vad som passar just er verksamhet. Här har ni hela Kungsholmens rika utbud av service inom räckhåll. I närområdet finns gott om restauranger, caféer, träningsmöjligheter och annan närservice. Läget är mycket kommunikativt med nära till tunnelbana, bussar och goda cykelförbindelser. För den bilburna personalen finns dessutom lediga garageplatser att hyra i fastigheten, vilket är en stor fördel i centrala Stockholm. Kontakta oss för att boka in en visning!
Välkommen till en ljus lokal på Kronobergsgatan! Här samsas mötesrum i olika storlekar med öppet kontorslandskap. I lokalen finns även pentry, ett förråd samt två WC varav den ena med dusch och bastu. Flertalet fönster skänker lokalen med ljusinsläpp. Möjlighet finns att anpassa lokalen till vad som passar just er verksamhet. Här har ni hela Kungsholmens rika utbud av service inom räckhåll. I närområdet finns gott om restauranger, caféer, träningsmöjligheter och annan närservice. Läget är mycket kommunikativt med nära till tunnelbana, bussar och goda cykelförbindelser. För den bilburna personalen finns dessutom lediga garageplatser att hyra i fastigheten, vilket är en stor fördel i centrala Stockholm. Kontakta oss för att boka in en visning!
Moms tillkommer på ovanstående belopp



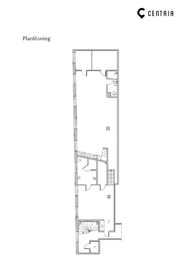
Lokalen är utformad med tre kontorsrum i olika storlekar, en öppen kontorsyta, pentry, ett förråd samt två WC varav den ena med dusch och bastu.

Louise Lindbäck
Har du frågor om lokalen eller något annat så är du mer än välkommen att höra av dig. Vi kan också hjälpa dig hitta rätt lokal utifrån dina önskemål och behov.